“你陪我走過你的夢境,且告訴我時光何時歸返。”
—聶魯達
POETIC DWELLING
城市的繁華、喧囂讓人們開始迷戀輕松、寧靜。
于繁華處,詩意棲居,出則繁華,入則自然。

本案是鬧中取靜的360㎡獨棟別墅,喧囂城市中的靜謐之居 。
現代雅致格調,滲透空間每個角落充分利用空間結構,營造素雅理想生活。
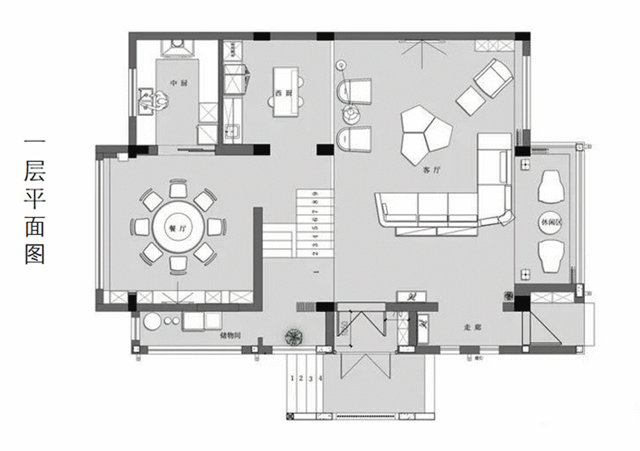
一層 | First floor


一樓客廳挑高的空間格局,大氣而不失格調,結合大面積采光玻璃,將風景與陽光引入室內。光影在空間中慢慢舞動著,演繹優雅格調。
細品微光中的柔情,將繁雜拋諸于外靜靜沉淀。以SK 800x1800mm燊科灰為地面主磚,柔和的真石肌理,抒寫親近自然的愜意。



真正的寧靜,有時光的溫度,也有生活的詩意。以SK 800x1800mm鏡像雪花白為電視背景墻,天然不規則的線條和肌理,質溫潤細膩,鏡像紋理設計,豐富而微妙的層次感。



生活的藝術于每一處的小細節中流露出來,樓梯處利用走廊動線打造成一條環形藝術裝飾走廊,彰顯空間主人的品味,讓空間綻放優雅的氣質魅力。




西廚亦是與餐廳的風格相銜接,木色的櫥柜有著天然的舒適質感。
地面鋪設SK 800x1800mm燊科灰,高級灰與柔白線紋,優雅富有內涵,勾勒出未來生活的理想方式。
二層 | Second floor



臥室是一個私密的空間,是讓人最放松的空間,二樓主臥室以SK 200X1200mm木紋原木色為主磚。
輕柔靈動的色彩交融,覓得一室芳華與寧靜優雅,木紋的暖意,又能增添空間的溫度,營造獨立個性且不失溫馨柔和的臥室空間。

兒童房以自然清新的粉色調配原木家具,讓房間溫暖、有安全感,不失唯美可愛。

多功能廳的巧妙設置,讓人卸下繁雜的紛擾。
以SK 200X1200mm木紋原木色為主磚,整體格調舒適、自然、愜意,躺在沙發上,細細的享受生活的美好。
三層 | Third floor


三層主臥采用三角異形頂面,硬朗的木作材質和利落的線條,搭配SK 200X1200mm木紋原木色,以設計語言來對藝術美的捕捉。


打破傳統單一調性,探索空間更多可能。以SK 600x1200mm寒江雪和雪花白,展現衛浴空間豐富的層次感與設計感,讓你沉浸其中享受著無比的自在和放松。
平 面 布 置 圖 | P L A N

項目信息 | INFORMATION
項目名稱 :濠濱花園別墅
項目面積:360㎡
設計團隊:谷崧設計
項目用磚 | CERAMICS
雪花白鏡像 STATUARIO BIANCO BOOKMATCH

800x1800mm 一石6面 柔光面
SK大理石系列,黃金比例,更高格調
燊科灰 THINKHOME GRAY

800x1800mm 一石9面 柔光面
SK大理石系列,優雅高級灰,卓越質感
雪花白STATUARIO BIANCO BRANCH

600x1200mm,一石16面,柔光面
SK大理石系列,溫和柔潤,雅致美感
寒江雪 INVISIBLE GRAY

600x1200mm, 一石9面, 柔光面
SK大理石系列,潑墨肌理,獨有韻味
木紋原木色 LOG WOOD

200x1200mm,一石24面, 仿古面
SK木紋系列,原木時代,自然愜意